Keupayaan Kebolehan
Membelah (Membujur)
. Celah ketepatan;
. Memotong ke panjang;
. Mengkosongkan
Jumlah Luas Tanah
Penggunaan tahunan keluli
Pekerja
. Celah ketepatan;
. Memotong ke panjang;
. Mengkosongkan
. Penjana laser IPG
. Ketepatan kedudukan ulangan tinggi-0.01mm.
. Sambutan pantas: 7 hari persampelan masa mendahului.
. QTY: 5 set.
. 110 set akhbar dengan julat dari 16T-400T;
. Kos mati yang rendah;
. Masa utama yang singkat untuk pembangunan die, kurang daripada 30 hari untuk pengeluaran besar-besaran;
. Menyokong permintaan pensampelan;
. Penyelesaian kos rendah daripada penggunaan bahan dengan penyuap berayun;
. Penuhi permintaan volum rendah dan sederhana.
. Penyelesaian kos rendah untuk bahagian besar;
. Masa pendahuluan yang singkat.
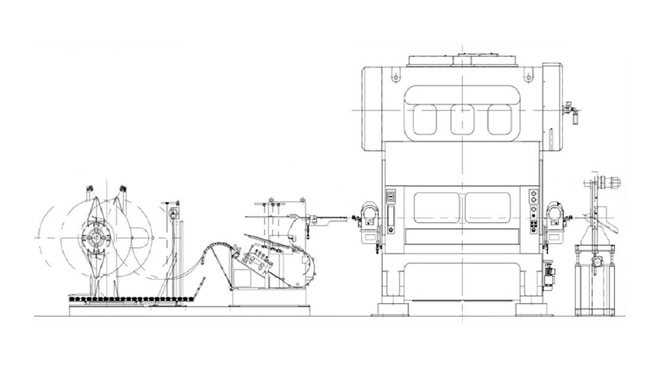
· Lebih 30 penekan berkelajuan tinggi
·Ton: 200-400 tan
·Saiz meja: 1.2M-3.7M
· Penekan berkelajuan tinggi bersaiz meja sepanjang 3.7 meter menawarkan penyelesaian pengecapan berbilang rongga untuk bahagian pengecapan bersaiz besar
Membelah (Membujur)
Pemotongan Laser
Setem Kompaun (Setem Umum)
torehan
Setem Progresif Berkelajuan Tinggi
. Lebih 15 mesin pemutus die untuk memenuhi pelbagai keperluan aplikasi
. Mesin tuangan mati automatik mendatar dengan julat tan 280T hingga 560T
. Mesin tuangan mati vakum menegak dengan tan 200T
. Mesin tuangan mati menegak mampu bertukar antara aloi kuprum dan aluminium
· Operasi berbilang saluran
· Pengukuran ketinggian automatik
· Pengesanan jenis alur automatik
· Tekanan automatik
· Penandaan automatik
· Pengimbasan automatik dan pemeriksaan kualiti
· Pembuangan habuk automatik dan pencegahan karat
· Pengisihan automatik dan kebolehkesanan data
· Setiap barisan pengeluaran stamping berkelajuan tinggi dilengkapi dengan talian rotor automatik.
· Lebih 25 talian kimpalan stator automatik sepenuhnya, dilengkapi dengan keupayaan seperti penimbang, pengukuran dimensi kritikal, pemeriksaan perbandingan visual jahitan kimpalan, pemeriksaan objek asing slot automatik, pengekodan automatik, pengisihan automatik dan kebolehkesanan data.
· Stesen kimpalan laser stator
· Stesen kimpalan TIG Robotik (Tungsten Inert Gas).
· Stesen mesin kimpalan TIG berbilang stesen berputar
· Memenuhi keperluan peribadi produk dengan saiz kelompok berbeza
Menawarkan proses seperti keratan pemegun, rivet dan pencengkam kendiri manual untuk laminasi. Ia menggunakan kaedah menekan stator tradisional hingga maju, termasuk menekan mekanikal dan menekan servo. Pendekatan ini bukan sahaja menyediakan penyelesaian kejuruteraan kos rendah untuk penghantaran sampel dan produk kumpulan kecil tetapi juga menawarkan penyelesaian kejuruteraan yang sangat tepat dan disesuaikan untuk memenuhi keperluan pelanggan yang pelbagai.
Bengkel penggulungan stator;
Penggulungan manual dan penggulungan automatik, dengan kapasiti pengeluaran 100,000 unit.
Jufeng membantu pelanggan mencapai matlamat untuk mengurangkan kos, meningkatkan kecekapan, meningkatkan daya saing pasaran, dan mempromosikan inovasi teknologi melalui definisi nilai, analisis, penambahbaikan dan pengesahan dalam pelbagai aspek seperti reka bentuk produk, proses pengeluaran dan pemilihan bahan.
Jufeng menawarkan perkhidmatan FEA (Analisis Unsur Terhingga), yang bertujuan untuk menganalisis prestasi elektromagnet, mekanikal dan haba teras pemegun dan rotor menggunakan kaedah unsur terhingga. Ini membantu pelanggan mengurangkan kos, meningkatkan kecekapan dan meningkatkan daya saing mereka dalam pasaran.
Die Casting
Talian Pemutar Automatik
Kimpalan Stator
Penekan Stator
Penggulungan Stator
VAVE
FEA
Teknologi Jufeng, dengan pangkalan data sampel prestasi keluli silikonnya yang luas, mempunyai pengumpulan teknikal yang mendalam dalam bidang keluli elektrik. Ia menyediakan sokongan tepat untuk reka bentuk motor, memastikan reka bentuk yang dioptimumkan dan mengelakkan lebihan. Ia boleh memilih prestasi berkualiti tinggi dalam gred yang sama, meningkatkan kecekapan motor.
Teknologi Jufeng telah terlibat secara mendalam dalam bidang pengecapan sejak sekian lama, mengumpul banyak pengalaman dan membangunkan pelbagai penyelesaian kejuruteraan pengecapan seperti pengecapan kompaun, pengecapan berayun, pengecapan satu slot dan pengecapan progresif berkelajuan tinggi. Penyelesaian ini boleh memenuhi keperluan saiz kelompok yang berbeza, tahap ketepatan dan masa penghantaran, memberikan pelanggan perkhidmatan pengecapan yang cekap dan tepat.
Teknologi Jufeng, memanfaatkan keupayaan reka bentuk motor yang diingini, telah berjaya membangunkan satu siri motor kecekapan tinggi dan memperoleh pelbagai paten. Reka bentuk teras syarikat telah mencapai pensirian dan penyeragaman, memenuhi keperluan prestasi tinggi sambil mengawal kos dengan berkesan, menjadikannya sokongan nilai yang boleh dipercayai untuk pelanggan motor.
Teknologi Jufeng telah membangunkan gam pasca-acuan, gam dalam-acuan, dan proses pelekat sendiri untuk memenuhi keperluan kumpulan dan aplikasi teras motor yang berbeza-beza. Dengan mengoptimumkan pengeluaran, mereka telah meningkatkan kecekapan dan mengurangkan kos, mencapai keseimbangan antara kos komprehensif dan kecekapan motor, membawa kemajuan teknologi yang ketara dan faedah ekonomi kepada pembuatan motor.
Proses penyepuhlindapan untuk pengecapan keluli silikon boleh melepaskan tekanan menekan, menggalakkan pengoptimuman dan pertumbuhan bijirin, burr membosankan dengan berkesan, dan meningkatkan prestasi elektromagnet dengan ketara. Proses ini mengoptimumkan struktur bahan dengan mengawal proses pemanasan dan penyejukan dengan tepat, mengurangkan kehilangan besi, dan meningkatkan kecekapan tenaga, menunjukkan prestasi yang diingini dalam kebanyakan aplikasi motor.
Pemilihan Bahan
Pembangunan Teknologi Setem
Reka Bentuk Teras Motor
Kunci Gam
Penyepuhlindapan
Tambah: 369 Jalan Timur Huanzhen, Bandar Changle, Bandar Shengzhou, Wilayah Zhejiang, China
Tambah: No. 1007 Jalan Huanzhen Timur, Bandar Changle, Bandar Shengzhou, Wilayah Zhejiang, China
Tambah: No.555 Wenhe Road, Zon Pembangunan Ekonomi, Bandar Tongxiang, Bandar Jiaxing, Wilayah Zhejiang, China











